Italiano
2 Camere 2 Bagni 2 Box/Posti auto 134 m2
Caratteristiche principali
Prezzo
165.000,00 EUR
Classe
B (47 [kWh/m²a])
Locali
4
Mq Box
30
Mq Balcone
6
Altre caratteristiche e accessori
Stato Immobile
Nuovo
Grado
Signorile
Posizione
Centro Storico
Panorama
Vista Aperta
Piano
Secondo
Orientamento
Sud Ovest
Totale Piani
Due
Lati Liberi
2
Giardino
Comune
Arredi
Non Arredato
Tipo Soggiorno
Soggiorno
Tipo Cucina
Angolo Cottura
Riscaldamento
Tele Riscaldamento
Tipo Riscaldam.
Caldaia a Condensazione
Tipo Impianto
Pavimento
Fonte Energetica
Gas
Acqua Calda
Centralizzata a Pannelli
Infissi
Legno Doppio Vetro
Serramenti
Nuovo
Persiana
Persiana Metallo
Pavim. Giorno
Ceramica
Pavim. Notte
Gres Porcellanato
Pavim. Cucina
Ceramica
Pavim. Bagno
Ceramica
Accesso Disabili
Nessuna Barriera
Accessori
Antifurto, Aria Condizionata, Ascensore, Cancello Elettrico, Doppi Vetri, Fibra Ottica, Impianto Satellitare, Lavanderia, Pannelli Solari, Parco Condominiale, Passaggio Automobilistico, Passaggio Pedonale, Porta Blindata, Ripostiglio, Video Citofono, Zanzariere
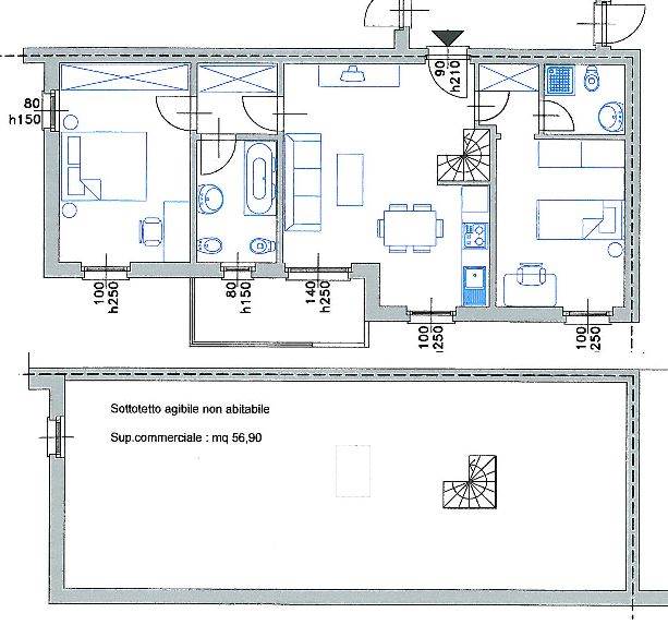
APPARTAMENTO DUPLEX di nuova costruzione in contesto signorile, ottime finiture, super accessoriato. Alloggio al secondo piano di mq. 80 ca. oltre mansarda a rustico, da rifinire di mq. 54 ca.: soggiorno c/angolo cottura, 2 camere, d/servizi e balcone. La mansarda, che viene consegnata con la predisposizione degli impianti, consente di ricavare uno spazio extra di due camerette con ripostigli armadio e bagno. Box doppio + posto auto scoperto.
L'unità immobiliare è dotata di impianto di riscaldamento autonomo a pavimento, ventilazione meccanica che garantisce un costante ricambio d'aria a temperatura interna senza dover aprire le finestre, videocitofono, impianto antintrusione e predisposizione clima.
Lo stabile è stato costruito in conformità con le disposizioni previste dal "Superbonus 110" riguardo al risparmio energetico: cappotto isolante, pannelli solari per l'acqua calda sanitaria, caldaia a condensazione con recupero di calore ed appunto la ventilazione meccanica che permette di avere sempre aria pura negli alloggi senza dispersione del calore accumulato.
Rif.975 Euro 165.000,00
per ulteriori info tel. 3498074986
Video
Via Arese 32, Robecchetto con Induno (MI)
Cookie preference